Die Regeln zur Kenntnis genommen Einloggen
Um Ihren Merkzettel zu speichern, müssen Sie angemeldet sein.
Anmelden mit:
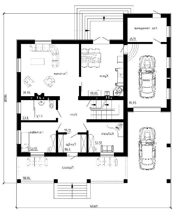
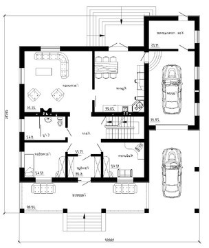
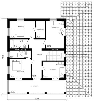
  • Erdgeschoß:
    Erdgeschoß::
    Erdgeschoß::
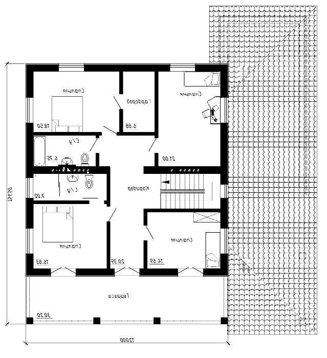
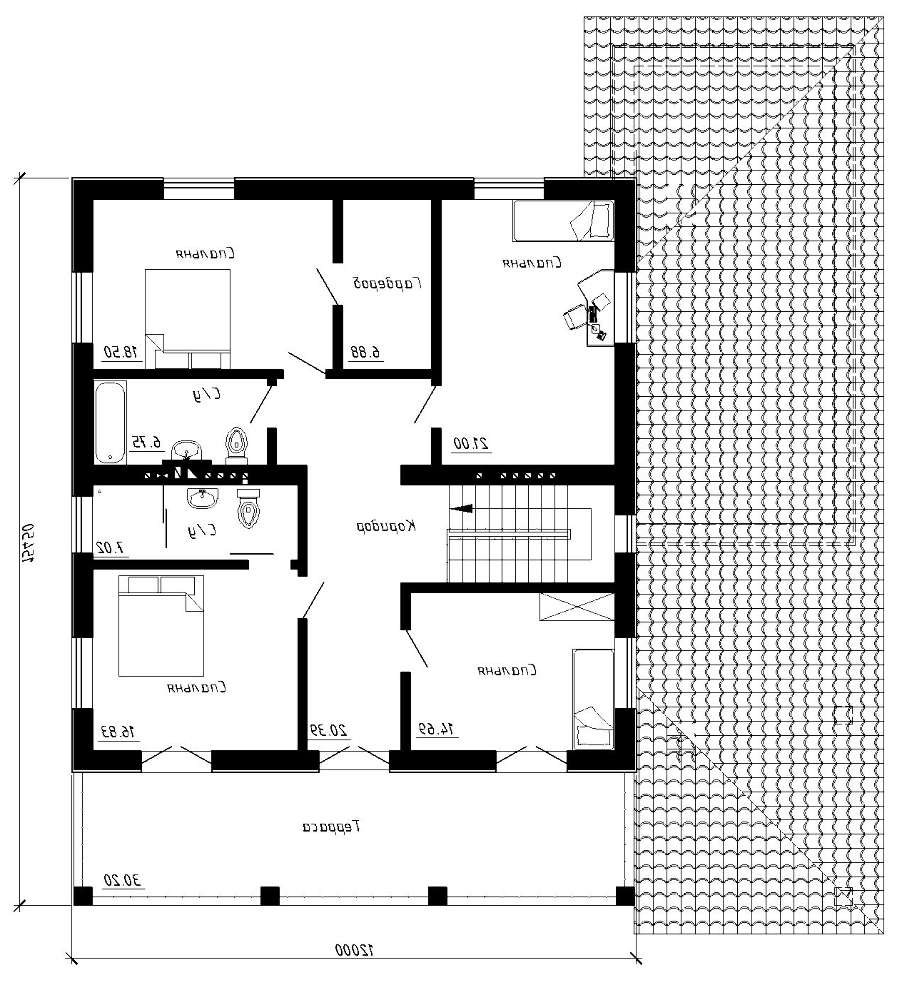
    Zweites Geschoß:
    Zweites Geschoß::
    Zweites Geschoß::
    Untergeschoß:
    Untergeschoß::
    Untergeschoß::
  • 4M1610

    Artikel4M1610
    Anzahl der Geschosse:3
    Gesamtfläche:402.00 м2
    Höhe des Hauses:9.00 м
    Deckenhöhe:2.80 м
    Anzahl der Schlafzimmer:5
    Anzahl der Toilettenräume:4
    Garage:
    Minimale Größe des Geländes (Länge):26.50 м
    Minimale Größe des Geländes (Breite):24.50 м
    Fläche des Untergeschosses:110.97 м2
    Baustoffe:
    Wände:
    Decke:
    Dach:
    Fundament:
Plan der Geschosse
  • Erdgeschoß:
    Erdgeschoß:
    Erdgeschoß:
    Zweites Geschoß:
    Zweites Geschoß:
    Zweites Geschoß:
    Untergeschoß:
    Untergeschoß:
    Untergeschoß:
Fassaden und Lage auf dem Gelände
Projektinhalt

Приобретая проект дома в компании Dom4M, Вы получаете комплект чертежей - 2 экземпляра, необходимый для проведения строительных работ и беспрепятственного получения разрешения на строительство.

Проект содержит три раздела – Архитектурный, Конструктивный и Инженерный (Водоснабжение, Отопление, Вентиляция, Канализация, Электроснабжение) + Пояснительная записка

1. Архитектурный раздел:

  • Общие данные по проекту
  • План координационных осей
  • Поэтажные кладочные планы
  • Поэтажные маркировочные планы с экспликацией помещений
  • План кровли
  • Разрезы и состав конструкций
  • Фасады с ведомостью внешних отделок
  • Элементы проемов – спецификация
  • Ведомость перемычек – сечения и спецификация
  • Экспликация полов
  • Объемы основных строительных материалов
  • Архитектурные узлы в конструкциях

2. Конструктивный раздел:

  • Общие данные по проекту
  • Схемы расположения и расчеты фундаментов
  • Элементы каркаса – схемы расположения
  • Схема расположения перекрытий
  • Опоры перекрытия на стены или Узлы армирования
  • Элементы кровли – схемы расположения
  • Чертежи отдельных элементов, узлы крепления, сечения
  • Ведомости расхода стали и бетона

3.  Инженерный раздел:

              Водоснабжение и канализация

  • Условные обозначения с общими данными
  • Поэтажная система водоснабжения и канализации
  • Аксономитрическая схема водоснабжения и канализации
  • Узлы и спецификация материалов

              Отопление, вентиляция

  • Условные обозначения с общими даннями
  • Система вентиляции
  • Система отопления
  • Аксономитрическая схема системы отопления
  • Тепловая схема
  • Спецификация материалов

             Электротехнические решения:

  • Условные обозначения и общие данные
  • Принципиальная схема ВРУ
  • План сетей освещения, план силовых сетей
  • Схема системы уравнения потенциалов
  • Схема повторного контура заземления
  • Спецификация материалов

Проект является типовым и не учитывает конкретных условий строительства

В типовом проекте приняты следующие нормативные данные:

  • Климатическая зона с нормируемым сопротивлением теплопередачи ограждающих конструкций (стен) до 4,6 м2°С/Вт (применяется утеплитель 100 мм); 3,5 м2°С/Вт ( утеплитель 50 мм) и 2,5 м2°С/Вт (без утеплителя)
  • Снеговая нагрузка 1,8 кПа (6 снеговой район в соответствии с ДБН В.1.2-2:2006 и III снеговой район в соответствии СНиП 2.01.07-85*)
  • Расчетная температура для отопления -22 градуса по Цельсию
  • Пирог стены принят 375 мм (380) газобетон (керамоблок) + 50 мм утеплителя
  • Фундамент принят сборно-монолитным (монолитная армированная подушка и стеновая часть фундамента со сборными блоками). Нормативная глубина промерзания грунта до 1,5 м

Срок изготовления проекта дома составляет от 3 до 30 рабочих дней.

Объем проектной документации – от  50 до 100 страниц А4 и А3, в зависимости от сложности проекта

 

Наша команда Архитекторов, Конструкторов и Инженеров – всегда готовы воплотить Вашу мечту в реальность!

Мы можем вносить любые изменения в проект по Вашему пожеланию и адаптировать его с учетом конкретных геолого-топографических и климатических условий, за дополнительную плату.

  • Получить профессиональную консультацию у наших специалистов, Вы можете любым способом связи: закажите обратный звонок, по skype, e-mail, телефон - наши контакты.

Всегда рады Вам помочь!

Ganzen Text lesen
Zusätzliche Pakete
Ähnliche
Fassaden

4M1610

Kommentare
Um einen Kommentar zu schreiben, müssen Sie folgende Felder ausfüllen oder angemeldet sein.
Bilder hochladen, bis 5 Stück
Ähnliche
KAUFEN
© 2010-2021 Dom4M. Alle Rechte vorbehalten
This site is protected by reCAPTCHA and the Google Privacy Policy and Terms of Service apply