
| Artikel | 4M777 |
| Anzahl der Geschosse: | 2 |
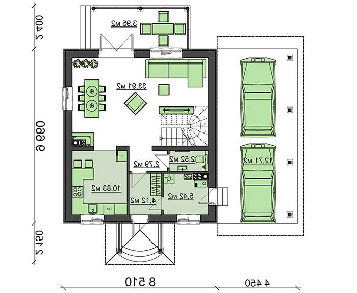
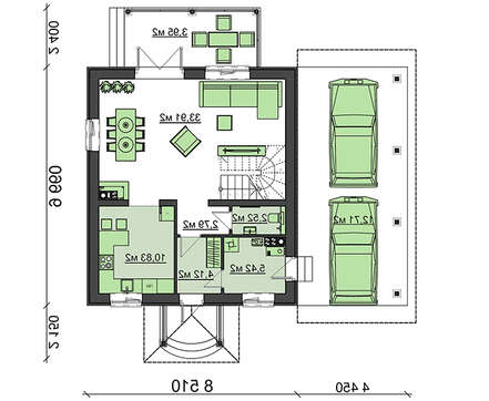
| Gesamtfläche: | 135.34 м2 |
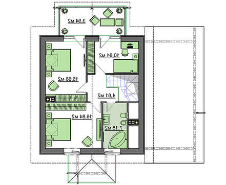
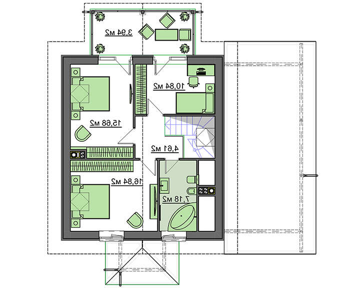
| Wohnfläche: | 68.00 м2 |
| Höhe des Hauses: | 7.87 м |
| Deckenhöhe: | 2.80 м |
| Dachneigung: | 35 ° |
| Dachfläche: | 212.00 м2 |
| Anzahl der Schlafzimmer: | 3 |
| Anzahl der Toilettenräume: | 2 |
| Minimale Größe des Geländes (Länge): | 22.00 м |
| Minimale Größe des Geländes (Breite): | 21.00 м |
| Überbaute Fläche: | 145.55 м2 |
Baustoffe: | |
| Wände: | |
| Decke: | |
| Dach: | |
| Fundament: | |
| Artikel | 4M777 |
| Anzahl der Geschosse: | 2 |
| Gesamtfläche: | 135.34 м2 |
| Wohnfläche: | 68.00 м2 |
| Höhe des Hauses: | 7.87 м |
| Deckenhöhe: | 2.80 м |
| Dachneigung: | 35 ° |
| Dachfläche: | 212.00 м2 |
| Anzahl der Schlafzimmer: | 3 |
| Anzahl der Toilettenräume: | 2 |
| Minimale Größe des Geländes (Länge): | 22.00 м |
| Minimale Größe des Geländes (Breite): | 21.00 м |
| Überbaute Fläche: | 145.55 м2 |
Baustoffe: | |
| Wände: | |
| Decke: | |
| Dach: | |
| Fundament: | |
Приобретая проект дома в компании Dom4M, Вы получаете комплект чертежей - 2 экземпляра, необходимый для проведения строительных работ и беспрепятственного получения разрешения на строительство.
Проект содержит три раздела – Архитектурный, Конструктивный и Инженерный (Водоснабжение, Отопление, Вентиляция, Канализация, Электроснабжение) + Пояснительная записка
1. Архитектурный раздел:
2. Конструктивный раздел:
3. Инженерный раздел:
Водоснабжение и канализация
Отопление, вентиляция
Электротехнические решения:
Проект является типовым и не учитывает конкретных условий строительства
В типовом проекте приняты следующие нормативные данные:
Срок изготовления проекта дома составляет от 3 до 30 рабочих дней.
Объем проектной документации – от 50 до 100 страниц А4 и А3, в зависимости от сложности проекта
Наша команда Архитекторов, Конструкторов и Инженеров – всегда готовы воплотить Вашу мечту в реальность!
Мы можем вносить любые изменения в проект по Вашему пожеланию и адаптировать его с учетом конкретных геолого-топографических и климатических условий, за дополнительную плату.
Всегда рады Вам помочь!