Projektinhalt
Приобретая проект дома в компании Dom4M, Вы получаете комплект чертежей - 2 экземпляра, необходимый для проведения строительных работ и беспрепятственного получения разрешения на строительство.
Проект содержит три раздела – Архитектурный, Конструктивный и Инженерный (Водоснабжение, Отопление, Вентиляция, Канализация, Электроснабжение) + Пояснительная записка
1. Архитектурный раздел:
- Общие данные по проекту
- План координационных осей
- Поэтажные кладочные планы
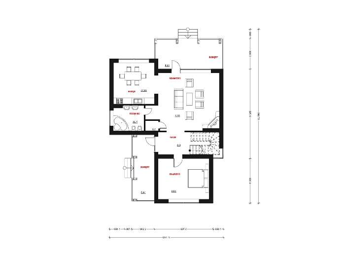
- Поэтажные маркировочные планы с экспликацией помещений
- План кровли
- Разрезы и состав конструкций
- Фасады с ведомостью внешних отделок
- Элементы проемов – спецификация
- Ведомость перемычек – сечения и спецификация
- Экспликация полов
- Объемы основных строительных материалов
- Архитектурные узлы в конструкциях
2. Конструктивный раздел:
- Общие данные по проекту
- Схемы расположения и расчеты фундаментов
- Элементы каркаса – схемы расположения
- Схема расположения перекрытий
- Опоры перекрытия на стены или Узлы армирования
- Элементы кровли – схемы расположения
- Чертежи отдельных элементов, узлы крепления, сечения
- Ведомости расхода стали и бетона
3. Инженерный раздел:
Водоснабжение и канализация
- Условные обозначения с общими данными
- Поэтажная система водоснабжения и канализации
- Аксономитрическая схема водоснабжения и канализации
- Узлы и спецификация материалов
Отопление, вентиляция
- Условные обозначения с общими даннями
- Система вентиляции
- Система отопления
- Аксономитрическая схема системы отопления
- Тепловая схема
- Спецификация материалов
Электротехнические решения:
- Условные обозначения и общие данные
- Принципиальная схема ВРУ
- План сетей освещения, план силовых сетей
- Схема системы уравнения потенциалов
- Схема повторного контура заземления
- Спецификация материалов
Проект является типовым и не учитывает конкретных условий строительства
В типовом проекте приняты следующие нормативные данные:
- Климатическая зона с нормируемым сопротивлением теплопередачи ограждающих конструкций (стен) до 4,6 м2°С/Вт (применяется утеплитель 100 мм); 3,5 м2°С/Вт ( утеплитель 50 мм) и 2,5 м2°С/Вт (без утеплителя)
- Снеговая нагрузка 1,8 кПа (6 снеговой район в соответствии с ДБН В.1.2-2:2006 и III снеговой район в соответствии СНиП 2.01.07-85*)
- Расчетная температура для отопления -22 градуса по Цельсию
- Пирог стены принят 375 мм (380) газобетон (керамоблок) + 50 мм утеплителя
- Фундамент принят сборно-монолитным (монолитная армированная подушка и стеновая часть фундамента со сборными блоками). Нормативная глубина промерзания грунта до 1,5 м
Срок изготовления проекта дома составляет от 3 до 30 рабочих дней.
Объем проектной документации – от 50 до 100 страниц А4 и А3, в зависимости от сложности проекта
Наша команда Архитекторов, Конструкторов и Инженеров – всегда готовы воплотить Вашу мечту в реальность!
Мы можем вносить любые изменения в проект по Вашему пожеланию и адаптировать его с учетом конкретных геолого-топографических и климатических условий, за дополнительную плату.
- Получить профессиональную консультацию у наших специалистов, Вы можете любым способом связи: закажите обратный звонок, по skype, e-mail, телефон - наши контакты.
Всегда рады Вам помочь!
Ganzen Text lesen