Die Regeln zur Kenntnis genommen Einloggen
Um Ihren Merkzettel zu speichern, müssen Sie angemeldet sein.
Anmelden mit:
  • Erdgeschoß:
    Erdgeschoß::
    Erdgeschoß::
    Zweites Geschoß:
    Zweites Geschoß::
    Zweites Geschoß::
    Untergeschoß:
    Untergeschoß::
    Untergeschoß::
  • 4M863

    Artikel4M863
    Anzahl der Geschosse:3
    Gesamtfläche:160.00 м2
    Anzahl der Schlafzimmer:4
    Anzahl der Toilettenräume:2
    Minimale Größe des Geländes (Länge):17.00 м
    Minimale Größe des Geländes (Breite):16.00 м
    Baustoffe:
    Wände:
    Decke:
    Dach:
    Fundament:
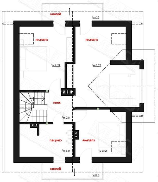
Plan der Geschosse
  • Erdgeschoß:
    Erdgeschoß:
    Erdgeschoß:
    Zweites Geschoß:
    Zweites Geschoß:
    Zweites Geschoß:
    Untergeschoß:
    Untergeschoß:
    Untergeschoß:
Fassaden und Lage auf dem Gelände
Projektinhalt

Покупая проект дома в компании Dom4M, Вы получаете комплект чертежей, необходимый для проведения строительных работ и беспрепятственного получения разрешения на строительство.

В основном составе, наш проект содержит:  Пояснительную записку и два больших раздела – Архитектурный и Конструктивный.

1. В состав Архитектурного раздела входят:

  • Поэтажные планы
  • Разрезы
  • План кровли
  • Фасады с ведомостью внешних отделок
  • Перспективные изображения
  • Цветовые решения фасадов
  • Архитектурный расчет лестниц
  • Дымовые (вентиляционные) каналы с по этажными сечениями
  • Элементы проемов – спецификация

2. В состав Конструктивного раздела входят:

  • Общие данные по проекту
  • Схемы расположения осей
  • Расчеты фундаментов
  • Элементы каркаса – кладочный план
  • Схема расположения перекрытий
  • Элементы кровли – перспективное изображениестропильной системы
  • Решение по облицовке фасада
  • Чертежи отдельных элементов, узлы крепления, сечения
  • Ведомости расхода стали и бетона

3.  Инженерный раздел (приобретается по желанию):

  • Водоснабжение и канализация
  • Отопление, вентиляция
  • Электротехнические решения

Срок изготовления проекта дома составляет от 7 до 35 рабочих дней.

Объем проектной документации – от  50 до 90 страниц А4 и А3, в зависимости от сложности проекта

  • Проекты являются типовыми и не учитывают конкретных условий строительства.

Наша команда Архитекторов, Конструкторов и Инженеров – всегда готовы воплотить Вашу мечту в реальность!

Мы можем вносить любые изменения в проект по Вашему пожеланию и адаптировать его с учетом конкретных геолого-топографических и климатических условий, за дополнительную плату.

  • Получить профессиональную консультацию у наших специалистов, Вы можете любым способом связи: закажите обратный звонок, по skype, e-mail, телефон - наши контакты.

Всегда рады Вам помочь!

Ganzen Text lesen
Zusätzliche Pakete
Ähnliche
Fassaden

4M863

Verlauf
Kommentare
Um einen Kommentar zu schreiben, müssen Sie folgende Felder ausfüllen oder angemeldet sein.
Bilder hochladen, bis 5 Stück
Ähnliche
KAUFEN
© 2010-2021 Dom4M. Alle Rechte vorbehalten
This site is protected by reCAPTCHA and the Google Privacy Policy and Terms of Service apply